Parduodamas butas Bartų g., Burbiškėse, Vilniuje, 73.03 kv.m ploto, 3 kambariai

Bartų g. 34, Burbiškės

„STEBUKLINGAS SODAS” – ketvirtasis (paskutinis) etapas Kerų kerai projekte. Statybos jau pasibaigusios, raktus gaukite jau dabar!
Vilniaus Burbiškių miške, kurio kalvas ir slėnius suformavo besitraukiantis ledynas, baigiamas plėtoti gyvenamųjų namų kvartalas „Kerų kerai“. Iki Vilniaus centro – vos 5 kilometrai, bet jausmas toks, lyg būtum toli nuo miesto šurmulio. „Kerų kerai“ – tai daugiau nei būstas. Tai – gyvenimo būdas, kuriame kerinčiai dera miesto ritmas ir miško ramybė.

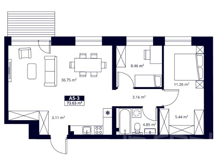
APIE BUTĄ A5-3:
– Butas IV-ame „Kerų kerai” etape, raktus bus galima gauti jau dabar;
– Buto plotas: 73,03 kv.m. (įregistruotas kadastrinis plotas 76,08 kv.m.)
– Aukštas: 1 iš 3;
– Butas su terasa;
– Buto svetainės langai orientuoti į pietų pusę;
– Kambarių skaičius: 3
– Šildymas: dujinis, išvedžiotas grindininis šildymas;
– Įrengimo lygis: dalinė apdaila;
– Priešgaisrinė apsaugos sistema;
– Galimybė įsigyti automobilio vietą bei sandėliuką;
– Paskirtis: gyvenamoji;
– Šiame name tik 15 butų.

APIE PROJEKTĄ:
– IV etapą „Stebuklingas sodas“ sudaro 7 pastatai;
– Paskutinis projekto „Kerų kerai“ etapas – netrukus bus baigti visi gerbūvio darbai;
– Aptverta teritorija, rakinama laiptinė, išskirtinis dėmesys – bendrų erdvių interjerui;
– A+ energetinio efektyvumo klasė;
– 3,1 ha teritorija Burbiškių miško parke.
– Projekto vystytojas: INREAL grupė;

APIE VIETĄ
– Miško apsuptyje, žmonėms kurie vertina ramybę ir gamtą;
– Iki miesto centro vos 5 kilometrai;
– Kartu su „Kerų kerai” projektu įrengta Bartų g. kelio dalis su šaligatviu ir apšvietimu (privažiavimui iki projekto);
I ETAPO darbai jau baigti;
II ETAPO darbai jau baigti;
III ETAPO darbai jau baigti;
IV ETAPO pastatai registruoti 100% baigtumu, pasirašomos notarinės sutartys;

KAINA: 229 000 EUR (įsk. PVM)

www.kerukerai.lt
Šiuos ir visus kitus butus projekte galima apžiūrėti iš anksto sutartu laiku.

Kaina: 229 000 €
Adresas: Bartų g. 34, Burbiškės
Statusas: Parduotas
Objekto ID: 75703
Kvadrato kaina
3135.7 € / m2
Plotas
73.03 m2
Aukštas
1 / 3
Kambariai
3
  • Šarvuotos durys
  • Internetas
  • Kodinė laiptinės spyna
  • Virtuvė sujung. su kamb.
  • Langai su stiklo paketais
  • Terasa
  • Šildomos grindys
  • Vaizdo kameros