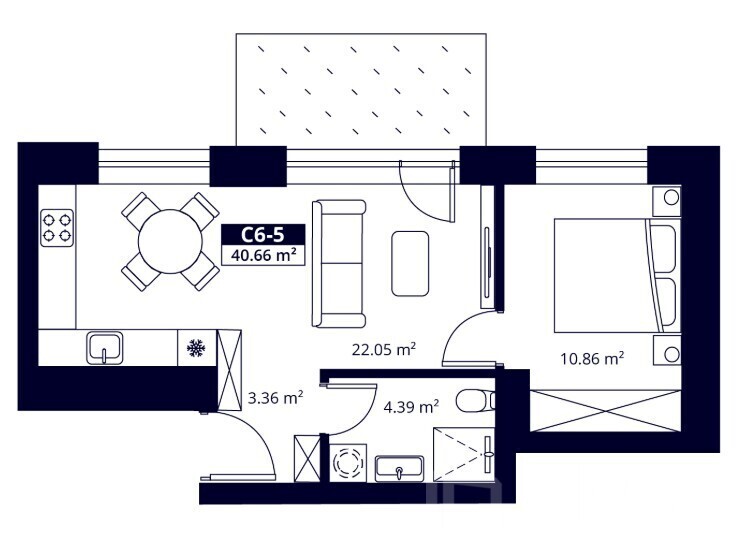
Parduodamas butas Bartų g., Burbiškėse, Vilniuje, 40.66 kv.m ploto, 2 kambariai

Bartų g. 32, Burbiškės

„STEBUKLINGAS SODAS” – ketvirtasis (paskutinis) etapas Kerų kerai projekte. Statybos jau įsibėgėjusios, raktus gaukite jau š.m. rudenį!
Vilniaus Burbiškių miške, kurio kalvas ir slėnius suformavo besitraukiantis ledynas, baigiamas plėtoti gyvenamųjų namų kvartalas „Kerų kerai“. Iki Vilniaus centro – vos 5 kilometrai, bet jausmas toks, lyg būtum toli nuo miesto šurmulio. „Kerų kerai“ – tai daugiau nei būstas. Tai – gyvenimo būdas, kuriame kerinčiai dera miesto ritmas ir miško ramybė.

APIE BUTĄ C6-5:
– Butas IV-ame „Kerų kerai” etape, raktus bus galima gauti 2025 rudenį;
– Buto plotas: 40,66 kv.m.
– Aukštas: 3 iš 3;
– Butas šviesus, didžiuliai langai orientuoti į vakarų pusę;
– Kambarių skaičius: 2
– Šildymas: dujinis, išvedžiotas grindininis šildymas;
– Įrengimo lygis: dalinė apdaila;
– Priešgaisrinė apsaugos sistema;
– Galimybė įsigyti automobilio vietą su stogine bei sandėliuką;
– Paskirtis: gyvenamoji;
– Šiame name, kuriame bus butas, tik 6 butai.

APIE PROJEKTĄ:
– IV etapą „Stebuklingas sodas“ sudaro 7 pastatai;
– Paskutinis projekto „Kerų kerai“ etapas – netrukus bus baigti visi gerbūvio darbai;
– Aptverta teritorija, rakinama laiptinė, išskirtinis dėmesys – bendrų erdvių interjerui;
– Statybų pabaiga: 2025 žiemą;
– A+ energetinio efektyvumo klasė;
– 3,1 ha teritorija Burbiškių miško parke.
– Projekto vystytojas: INREAL grupė;

APIE VIETĄ
– Miško apsuptyje, žmonėms kurie vertina ramybę ir gamtą;
– Iki miesto centro vos 5 kilometrai;
– Kartu su „Kerų kerai” projektu įrengta Bartų g. kelio dalis su šaligatviu ir apšvietimu (privažiavimui iki projekto);
I ETAPO darbai jau baigti;
II ETAPO darbai jau baigt;
III ETAPO pastatai įregistruoti 100 % baigtumu, pasirašomos notarinės sutartys;
IV ETAPO statybos įsibėgėjusios, pirmieji naujakuriai galės kurtis 2025 rudenį;

KAINA: 156 000 EUR (įsk. PVM)

www.kerukerai.lt
Šiuos ir visus kitus butus projekte galima apžiūrėti iš anksto sutartu laiku.

Kaina: 156 000 €
Adresas: Bartų g. 32, Burbiškės
Statusas: Parduotas
Objekto ID: 71919
Kvadrato kaina
3836.69 € / m2
Plotas
40.66 m2
Aukštas
3 / 3
Kambariai
2
  • Šarvuotos durys
  • Balkonas
  • Internetas
  • Kodinė laiptinės spyna
  • Virtuvė sujung. su kamb.
  • Langai su stiklo paketais
  • Šildomos grindys
  • Vaizdo kameros