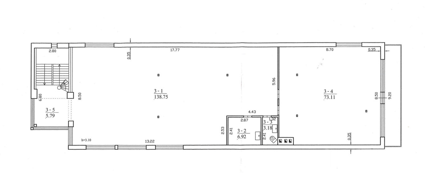
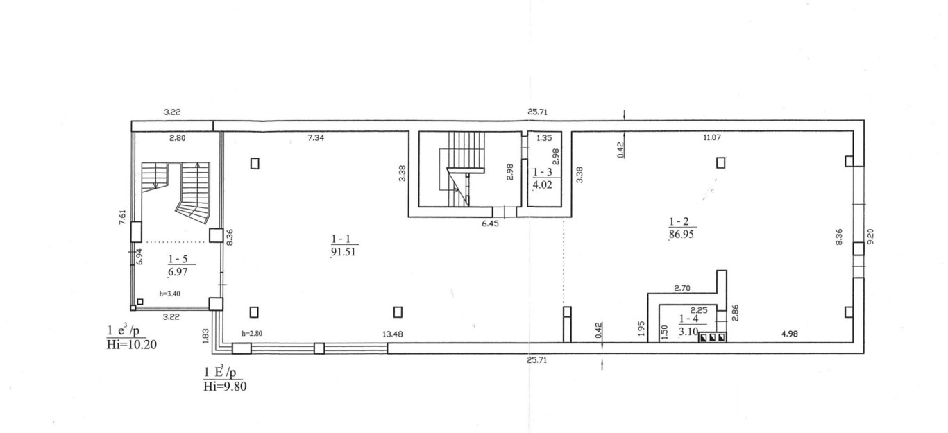
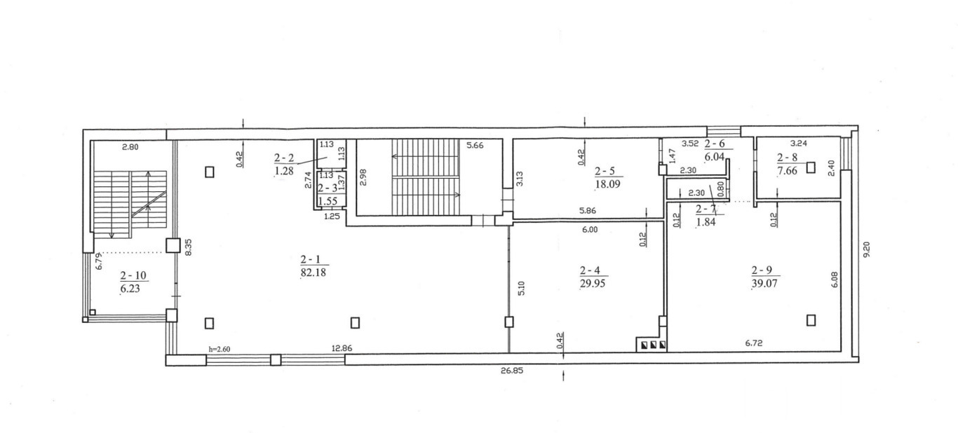
Parduodamos patalpos Savanorių pr., Kalniečiuose, Kaune, 595 kv.m ploto

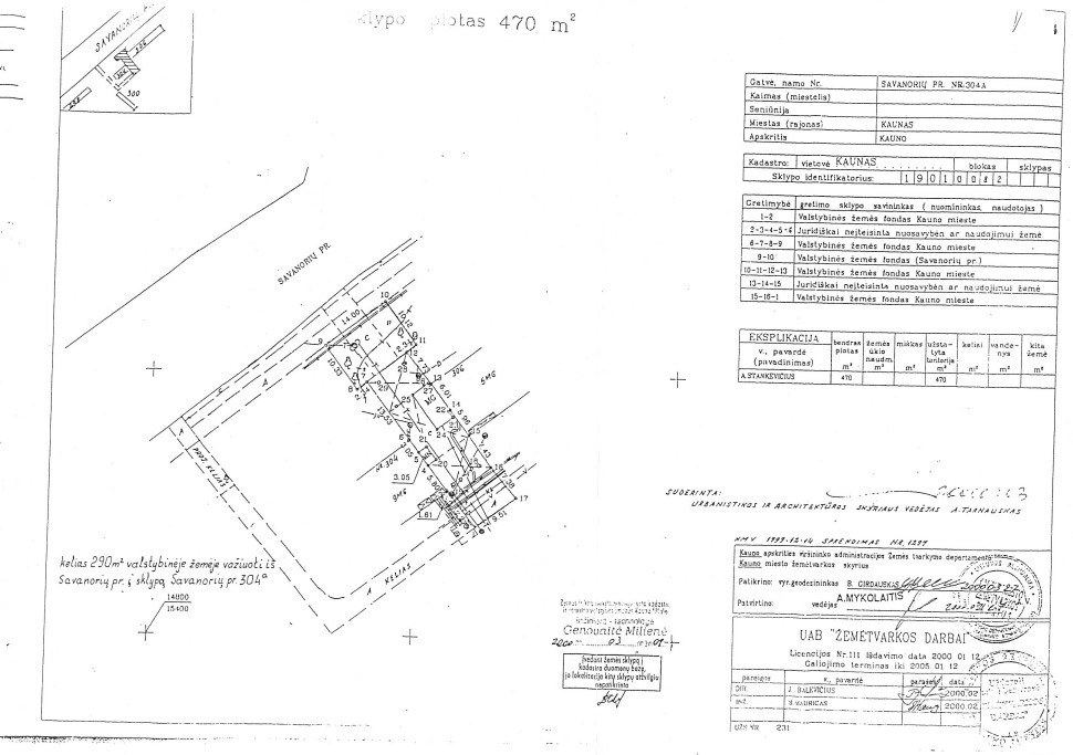
Savanorių pr. 304a, Kalniečiai

Parduodamos/nuomojamos patalpos Savanorių pr. Kaune

• Bendras plotas : 595 kv.m
• Sklypas : 4,7a. Nuoma iš valstybės;
• Statybos metai 1975m.
• Rekonstrukcija: 2006 m;
• Aukštų skaičius: 3;
• Šildymas: centrinis kolektorinis. Pastate yra atskira katilinė;
• Komunikacijos: vanduo, nuotekos, elektra, centrinis šildymas;
• Įrengta kondicionavimo sistema;
• Įrengti du balkonai;
• Vitrininiai langai;
• Įrengta keletas san. mazgų;
• Įrengti vartai sunkiasvoriui transportui. Privažiavimas iš vidinės kiemo pusės;
• Įrengtos parkavimo vietos;
• Patalpos yra pačioje judriausioje Kauno miesto gatvių- Savanorių pr.
• Didžiulis automobilių srautas, puikiai išvystytas viešasis transportas;
• Galima reklama ant pastato, nes puikiai matoma vieta;
• Kaina be PVM

Kaina: 1 150 000 €
Adresas: Savanorių pr. 304a, Kalniečiai
Statusas: Aktyvus
Objekto ID: 72973
Kvadrato kaina
1932.77 € / m2
Plotas
595 m2
Aukštas
1 / 3
Kambariai
3
  • Signalizacija
  • Elektra
  • Geras privažiavimas
  • Patalpų kondicionavimas
  • Atskiras įėjimas
  • Įėjimas iš gatvės
  • Vandentiekis
  • Vieta automobiliui