Parduodamas butas per du aukštus Klaipėdos senamiestyje

Turgaus g. 37, Senamiestis

Klaipėdos senamiesčio ritmu – apartamentai su vaizdu, kurį verta turėti!
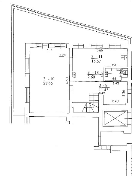
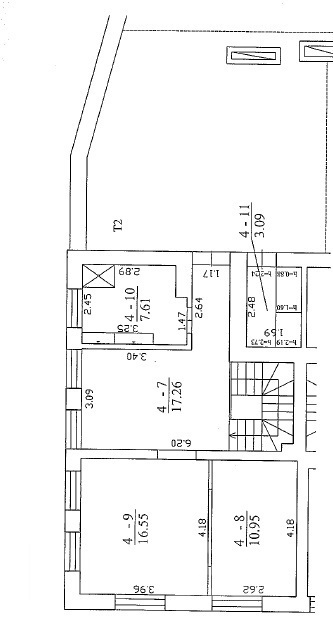
Ieškai gyvenimo, kuris kvėpuoja istorija ir elegancija? 113 kv. m apartamentai per du aukštus Turgaus g.:

* Svajojate gyventi pačioje senamiesčio širdyje ir mėgautis ramybe, saugia ir negausia kaimynyste, šis butas skirtas Jums. Pastatas randasi labiausiai vertinamoje unikalioje Klaipėdos senamiesčio dalyje, pro langus , iš balkono ir terasos atsiveria nuostabi panorama į Klaipėdos senamiestį ir Dangės upę.
* Tai prestižinis, nestandartinių architektūrinių sprendimų projektas , 4 aukštų pastate yra 20 butų ,gyventojų patogumui įrengtas liftas, pirmame namo aukšte įsikūrusios verslo įmonės ir grožio salonas. Puikiai sutvarkytos bendros erdvės, ramybe alsuojantis vidinis kiemelis Jums ir Jūsų šeimai.
* Apartamentai šviesūs, erdvūs, aukštomis lubomis, vitrininiais langais. Parduodama su baldais ir buitine technika.
* Puikiai išvystyta infrastruktūra ,šalia- dviračių takai, jaukios kavinės ir restoranai , 5 min. iki kelto.
* Priklauso pirmame aukšte esantis sandėliukas ir parkavimo vieta kieme, balkonas ir apie 40 kv.m. terasa .
* Jei svarstote įsigyti būstą kaip investiciją-Klaipėdos senamiestyje, būstas visada išlaiko savo vertę.

DĖMESIO! Tarpininkavimo mokestis pirkėjui NETAIKOMAS!
pardavimo kaina 629 000 EUR

Kaina: 629 998 €
Adresas: Turgaus g. 37, Senamiestis
Statusas: Aktyvus
Objekto ID: 76067
Kvadrato kaina
5575.2 € / m2
Plotas
113 m2
Aukštas
3 / 4
Kambariai
3
  • Signalizacija
  • Šarvuotos durys
  • Balkonas
  • Rūsys
  • Kondicionierius
  • Rūbinė
  • Su baldais
  • Internetas
  • Kodinė laiptinės spyna
  • Buitinė technika
  • Sandėliukas
  • Virtuvė sujung. su kamb.
  • Langai su stiklo paketais
  • Vieta automobiliui
  • Šaldytuvas
  • Terasa
  • Televizorius
  • Skalbimo mašina
  • Butas per kelis aukštus
  • Galima deklaruoti gyv. vietą
  • Viryklė
  • Indaplovė
  • Virtuvės komplektas